
Unser Familienhaus
Klassiker mit modernen Elementen
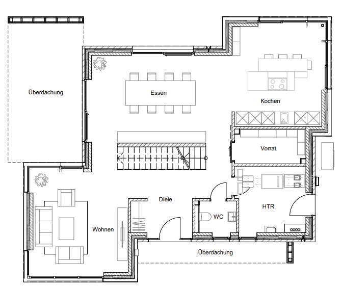
In unserem „Designcube“ erlebst du moderne Architektur und planerische Besonderheiten, die sich in vielen Häusern umsetzen lassen. Zum Beispiel eine offene Treppe im Wohn- und Essbereich, ein Schlafzimmer mit Ankleide und eigenem Bad, ein Kinderzimmer mit Kinderbad, eine überdachte Terrasse und schöne Aussichten durch Eckfenster und Erker.
Terfehrhaus Stil 5.9
Moderne Architektur und planerische Besonderheiten wie die offene Treppe im Wohn- und Essbereich, ein Schlafzimmer mit Ankleide und eigenem Bad oder die überdachte Terrasse machen dieses Terfehrhaus zu etwas Besonderem. Durch die Eckfenster und die verglasten Erker ist der Blick ins Grüne überall präsent und sorgt für eine angenehme Stimmung im Inneren.

Offen und großzügig: Die Räume im „Designcube“ gehen ineinander über
Informationen zur Wohnfläche
Sehr praktisch: Im Obergeschoss gibt es eine Nische mit Anschlussmöglichkeit für Waschmaschine und Trockner.
Informationen zur WohnflächeAuf einen Blick
186,04 m2
14,52 x 12,52 m
0 °
0 cm
Nimm gerne Kontakt mit uns auf.
Sie sehen gerade einen Platzhalterinhalt von Facebook. Um auf den eigentlichen Inhalt zuzugreifen, klicken Sie auf die Schaltfläche unten. Bitte beachten Sie, dass dabei Daten an Drittanbieter weitergegeben werden.
Mehr InformationenSie sehen gerade einen Platzhalterinhalt von Instagram. Um auf den eigentlichen Inhalt zuzugreifen, klicken Sie auf die Schaltfläche unten. Bitte beachten Sie, dass dabei Daten an Drittanbieter weitergegeben werden.
Mehr InformationenSie sehen gerade einen Platzhalterinhalt von Instagram. Um auf den eigentlichen Inhalt zuzugreifen, klicken Sie auf die Schaltfläche unten. Bitte beachten Sie, dass dabei Daten an Drittanbieter weitergegeben werden.
Mehr InformationenSie sehen gerade einen Platzhalterinhalt von X. Um auf den eigentlichen Inhalt zuzugreifen, klicken Sie auf die Schaltfläche unten. Bitte beachten Sie, dass dabei Daten an Drittanbieter weitergegeben werden.
Mehr Informationen